Locales en el centro comercial de Claypole venta en Block

direccion Salaberry 1188, Claypole

volver Volver al listado
left
right
left
right

Venta

USD 490.000

  • Oportunidad
  • Tipo de propiedad Cocheras

Acerca de la propiedad

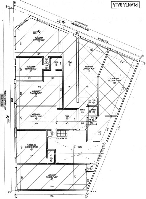
Venta de 8 locales en Block sobre calles Felix Lora esquina Salaberry, interseccion con Jose Ignacio Rucci.
Sobre un lote de 366m2
Superficie edificada 336m2, con escritura y planos aprobados.
compuesta por 8 locales de diversas medidas : detallado en imagen edificado en el 90% de la propiedad .
Actualmente todos los locales  se encuentran locados, con contratos vigentes.

Comodidades

Ver más

Ubicación

Fabian Castillo Propiedades

Servicio brindado por

buscadorprop

Todos los derechos registrados:

grupotodo
whatsapp Whatsapp email Contactar telefono Llamar
Chatea con nosotros whatsapp